Räätälöityjä suihkuratkaisuja

Olemme INR:llä suunnitelleet ja valmistaneet räätälöityjä suihkuseinäratkaisuja vuodesta 1988 lähtien ja olemme ylpeitä siitä, voidessamme tarjota sinulle täysin ainutlaatuisen suihkutilaratkaisun, joka on luotu millimetrin tarkkuudella juuri sinun kylpyhuoneeseesi. Suurin osa perusvalikoimamme suihkuratkaisuista on muokattavissa leveyden ja korkeuden osalta, ja voit tehdä nämä mukautukset helposti itse studiossamme. Ota valmis suunnitelma mukaasi lähimmälle jälleenmyyjälle ja tee tilauksesi.

Vaativammat ratkaisut – kuten mukautukset vinokattoon tai erilaiset läpivientien aukotukset – edellyttävät piirustusta, jonka suunnitteluosastomme Malmössä laatii maksutta. Kun piirustus on hyväksytty, tuotantoaika on noin kolme tai neljä työviikkoa. Ota yhteyttä jälleenmyyjään, joka auttaa sinua etenemään tilauksessasi.

Studio

 

Suunnittelijamme laativat maksuttoman piirustuksen, jonka hyväksyt ennen tuotannon aloittamista.

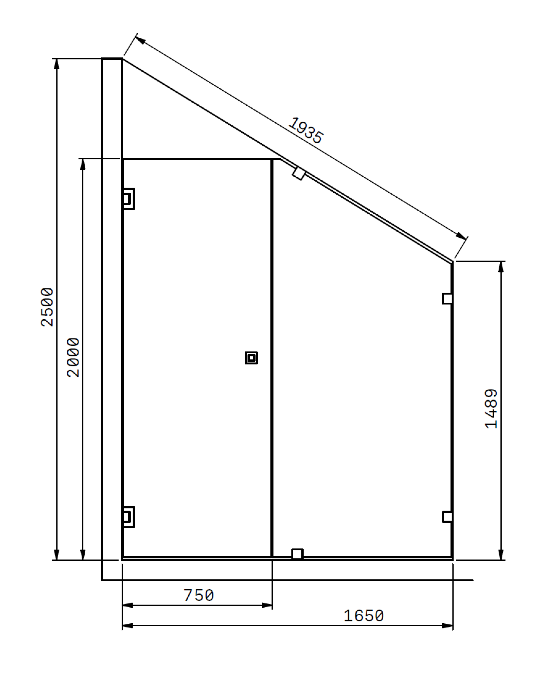
Piirustusesimerkki   →

Näin mittaat syvennyksen, jossa vinokatto

Mittaa suihkutila huolellisesti (aina laattojen asennuksen jälkeen) ja toimita mitat jälleenmyyjällesi. Saat muutaman päivän sisällä CAD-osastomme tuottaman piirustusehdotuksen maksutta. Valmistusaika hyväksytyn piirustuksen jälkeen on kolmesta neljään työviikkoa. Voit hyödyntää mittausohjetta apunasi.

Vinokatto vasen

Vinokatto oikea

 

 

 


Aiheeseen liittyvät

Räätälöidyt ratkaisut kylpyhuoneeseen

Lähes neljänkymmenen vuoden kokemuksella ja arkkitehtien ensisijaisena valintana tarjoamme myös kuluttajille räätälöityjä ratkaisuja. Monet mukautukset voit toteuttaa itse meidän studiossamme.

Katso lisää
Suihkuseinä EDGE, Stone.

Suihkutilaratkaisut

Tutustu suihkutilaratkaisuihimme, joissa on eri lasivahvuuksia ja monipuolisia valintamahdollisuuksia. Suurin osa suihkuseinistämme voidaan mittojen mukaan räätälöidä ilman lisäkustannuksia.

Katso lisää

INR

Ruotsissa valmistetuissa kylpyhuonetuotteissamme kohtaavat ajaton skandinaavinen muotoilu ja tinkimätön laatu. Yhteisestä intohimosta käsityötaitoon ja innovaatioihin luomme räätälöityjä, yksilöllisiä ratkaisuja kodin tärkeimpään tilaan: A bathroom crafted with heart. Made to fit you.

Katso lisää