Valoa, tilaa ja tummaa tammea Paul Reyn kylpyhuoneessa

Skånen rypsipeltojen keskellä, aivan Lundin ulkopuolella, artisti ja lauluntekijä Paul Rey ja hänen vaimonsa Dalia ovat luoneet kodin perheelleen. Yksitasoinen talo, jonka he ostivat vuonna 2023, herätti kiinnostuksen vehreän ympäristön, kaupungin läheisyyden ja mahdollisuuden ansiosta tehdä siitä omannäköinen. Kodin sisätilat uudistettiin kokonaan, ja lopputuloksena syntyi maanläheisten sävyjen koti, jossa rauhallinen ilme ja harmoninen tunnelma luovat paikan yhdessäololle.

Myös kylpyhuone oli tärkeä osa kokonaisuutta. Valoisa ja ilmava tila, beiget sävyt ja tummat puuyksityiskohdat tuovat kontrastia ja tekevät kylpyhuoneesta ajattoman ja persoonallisen. Tervetuloa tutustumaan materiaalivalintoihin, pohjaratkaisuun ja yksityiskohtiin, jotka viimeistelevät kokonaisuuden.

Paul Rey.

Core Nema ja Dark Oak yhdistyvät mittatilaustyönä valmistettuun Dekton Taga -altaaseen.

Kun perhe otti talon haltuunsa, kylpyhuone oli jaettu kahteen osaan. Etuosassa sijaitsi varsinainen kylpyhuone, kun taas väliseinä kätki taakseen kodinhoitotilan sekä yhden huoneen ikkunoista. Siirtämällä kodinhoitotilan toiseen osaan taloa ja purkamalla seinän he avasivat tilan suuremmaksi kylpyhuoneeksi, jossa luonnonvalo pääsee virtaamaan vapaammin ja tilaa riittää reilulle suihkunurkkaukselle. Beige laatta seinissä ja lattioissa luo tilaan rauhallisen perustan. Suihkun takaseinää rytmittää valaistu syvennys, ja suihkun viereen on sijoitettu Line-pyyhekuivaimet.

Arc 20 Frame XL -suihkuseinä ulottuu lattiasta kattoon ja toimii kylpyhuoneen katseenvangitsijana.

Suihkuseinä asennettiin ennen laatoitusta, mikä loi saumattoman ilmeen.

Line-pyyhekuivain tuo suihkun viereen toimivuutta ja selkeää ilmettä.

Suihkuratkaisuun Paul ja Dalia valitsivat 8 mm kirkkaan lasin, ja heillä oli alusta asti selkeä visio mahdollisimman saumattomasta ilmeestä. Arc-suihkuseinän tuli ulottua lattiasta kattoon ilman näkyviä kiinnikkeitä, jotta valo ja tilan tuntu säilyvät. Tämän toteuttamiseksi suihkuseinä asennettiin paikalleen ennen kylpyhuoneen laatoitusta.

“Ratkaisu vaati hyvää yhteistyötä osaavien ja luotettavien ammattilaisten kanssa, mutta olemme todella tyytyväisiä, että uskalsimme seurata omaa visiotamme. Lopputulos on juuri sellainen kuin toivoimme.”

Core Nema Dark Oak -allaskaluste tuo kylpyhuoneeseen lämpimän kontrastin vaaleisiin sävyihin.

Integroitu vedin korostaa Core Neman pelkistettyä ilmettä.

Kylpyhuoneen etuosassa katse kiinnittyy Core Nema -kaksoisallaskalusteeseen ja suureen mittatilaustyönä tehtyyn peiliin. Dark Oak -viimeistely tuo tilaan luonnollista lämpöä ja luo kauniin kontrastin vaaleita, beigen sävyjä vasten. Kaksoisaltaat olivat alusta asti selkeä valinta, ja toivotun ilmeen saavuttamiseksi perhe päätyi mittatilaustyönä valmistettuun altaaseen. Säilytystilaa täydentää rivi Dark Oak -sävyisiä Nema-seinäkaappeja, jotka kätkevät arjen tavarat ja ohjaavat katseen kohti tilavaa suihkua.

Dark Oak -seinäkaapit ohjaavat katseen eteenpäin kylpyhuoneessa.

Nema-seinäkaappi tarjoaa tilaa kaikelle ihonhoitoon, hiustenhoitoon ja arjen rutiineihin.

Lopputuloksena on kylpyhuone, jossa valoisa ja harmoninen ilme jatkuu luonnonmateriaaleissa, rauhallisissa sävyissä ja harkituissa ratkaisuissa. Valo virtaa sisään ja tuo tilaan ympäröivän luonnon. Paul ja Dalia kuvaavat kylpyhuonettaan omaksi spa-tilakseen – paikaksi rauhoittua ja palautua.

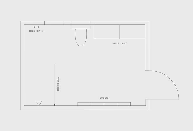
Pohjapiirros perheen 9,5 m² kylpyhuoneesta.


Tuotteet, jotka luovat tyylin


Tuotteet ja materiaalit

Beige laatta 60×60 Lunds Kakelvaruhusilta / Mittatilaustyönä tehty peili / Mittatilaustyönä valmistettu Dekton Taga -allas City Marmorilta / Riippuvalaisin allaskalusteen yläpuolella: Foscarini Gregg Piccola / Allaskaluste, suihkuseinä, seinäkaapit ja pyyhekuivaimet INR:ltä


Aiheeseen liittyvät

Astrid Marie Vie

Kurkista kotiin, jossa japandi-henki näkyy lämpimänä minimalismina – tammi tuo luonnollista harmoniaa kaikkiin huoneisiin, ja neutraali väripaletti huokuu rauhaa.

Katso lisää

Fors vesivoimala

Inspiroidu kylpyhuoneesta, jossa skandinaavinen rauha kohtaa teollisen tunnelman.

Katso lisää

Mood Hay

Elegantti paletti, jossa tumma tammi kohtaa kalkkikiven ja lämpimät pronssisävyt. Tutustu tähän Mood -palettiin ja anna sen muodostaa pohja uudelle kylpyhuoneellesi.

Katso lisää