Räätälöityjä suihkuratkaisuja

Olemme INR:llä suunnitelleet ja valmistaneet räätälöityjä suihkuseinäratkaisuja vuodesta 1988 lähtien ja olemme ylpeitä siitä, voidessamme tarjota sinulle täysin ainutlaatuisen suihkutilaratkaisun, joka on luotu millimetrin tarkkuudella juuri sinun kylpyhuoneeseesi. Suurin osa perusvalikoimamme suihkuratkaisuista on muokattavissa leveyden ja korkeuden osalta, ja voit tehdä nämä mukautukset helposti itse studiossamme. Ota valmis suunnitelma mukaasi lähimmälle jälleenmyyjälle ja tee tilauksesi.

Vaativammat ratkaisut – kuten mukautukset vinokattoon tai erilaiset läpivientien aukotukset – edellyttävät piirustusta, jonka suunnitteluosastomme Malmössä laatii maksutta. Kun piirustus on hyväksytty, tuotantoaika on noin kolme tai neljä työviikkoa. Ota yhteyttä jälleenmyyjään, joka auttaa sinua etenemään tilauksessasi.

Studio

 

Suihkumalli Arc 20 Frame XL, jonka lasi on mukautettu laatoitetun istuintason mukaan. Tässä kisko on upotettu lattialaattaan, mutta sen voi myös liimata ja ruuvata pintaan.

Mittojesi perusteella CAD-osastomme laatii piirustuksen, jonka hyväksyt ennen tuotantoa.

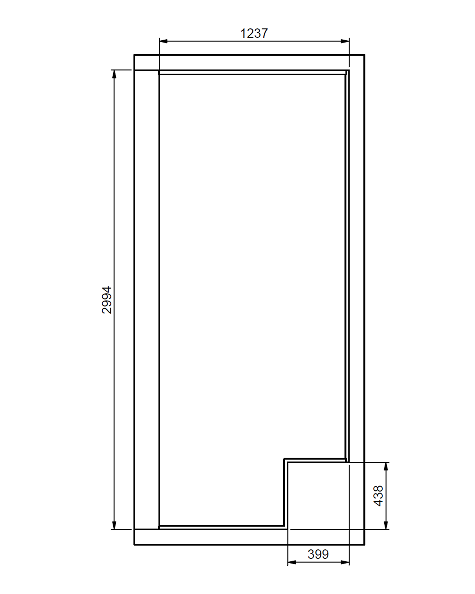
Näin mittaat syvennyksen, jossa vinokatto

Mittaa suihkutila huolellisesti (aina laattojen asennuksen jälkeen) ja toimita mitat jälleenmyyjällesi. Saat muutaman päivän sisällä CAD-osastomme tuottaman piirustusehdotuksen maksutta. Valmistusaika hyväksytyn piirustuksen jälkeen on kolmesta neljään työviikkoa. Voit hyödyntää mittausohjetta apunasi.

 

Vinokatto vasen

Vinokatto oikea

 

 

Piirustusesimerkki   →

Suunnittele suihkusi 3D:nä

3D-studiossamme yhdistät suihkuratkaisun ja kalusteet graniittikeraamisiin laattoihin. Mukauta mitat, värit ja yksityiskohdat – ja vie valmis tilauspohja jälleenmyyjällesi.

Måttanpassa din duschvägg i 3D.

Aiheeseen liittyvät

Putkien läpivienti LINC-mallissa, enintään 35 mm seinästä.

Putket suihkuseinän läpi

Periaatteessa kaikki Arc-, Edge- ja Linc mallistojemme suihkuseinät ovat asennettavissa, vaikka seinällä olisikin vesiputkia. 

Katso lisää
Duschserier - hitta en dusch för ditt badrum

Suihkutilaratkaisut

Tutustu suihkutilaratkaisuihimme, joissa on eri lasivahvuuksia ja monipuolisia valintamahdollisuuksia. Suurin osa suihkuseinistämme voidaan mittojen mukaan räätälöidä ilman lisäkustannuksia.

Katso lisää

Opas: Näin valitset oikean suihkuseinän

Suihkuseinä syvennyksessä, suihkunurkka, suihkuseinä keskellä tilaa? Autamme sinua valitsemaan oikean tuotteen.

Katso lisää